DWELLING ADDITIONS AND RENOVATIONS

Are you looking to increase the size and usability of your home?

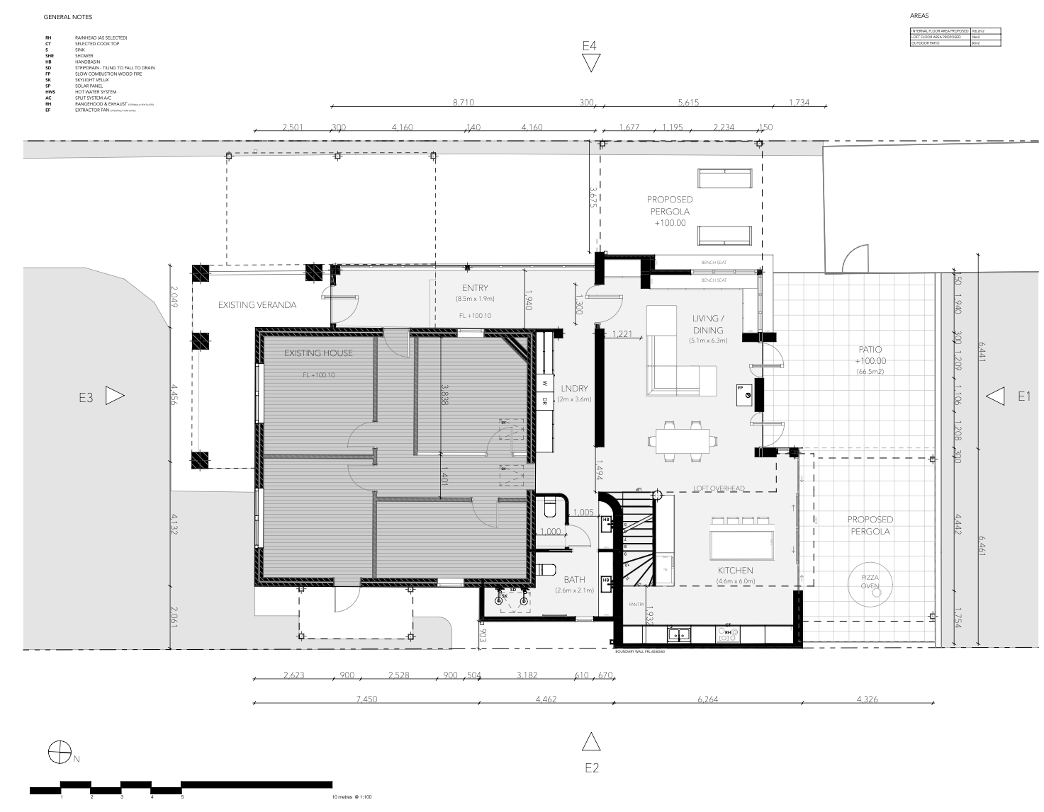
Here are some examples of a dwelling additions that show our design style and approach.


Improving solar gain with passive design principles.
Increased natural light entry into the living spaces.
Improving liveability for wellbeing and connection to outdoors.
Reduction in costs on heating and cooling per m2.
Functional layout considering minimal intervention vs maximum gain.